Skip To Content

11422 N Vantage Lane

Hideout, UT 84036
  • $6,500/mo.
  • STATUS: Active
  • ON SITE: 77 Days
  • MLS #: 12503822
Rental
UPDATED: 123 min ago
$6,500/mo.
Rental
  • 3
    BEDS
  • N/A
    ACRES
  • 3
    BATHS
  • 1
    1/2 BATHS
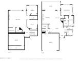
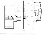
  • 3,161
    SQFT
Neighborhood:
Type:
Rentals
Built:
2021
County:
Area:

School Ratings & Info

School District:

Description

No Pets; price does not included utilities. Fully furnished. Set against the serene beauty of the Jordanelle Reservoir, beautiful home blends luxury with nature. Thoughtfully designed to complement its surroundings, it features expansive windows and a trifold door in the living room, opening to a spacious deck, perfect for entertaining or unwinding in the fresh mountain air. The open concept living area boasts high ceilings, a gourmet kitchen with premium appliances, custom cabinetry, and a large center island. A linear gas fireplace upstairs adds warmth and ambiance, while a traditional gas fireplace downstairs creates a cozy retreat. With three bedrooms and 3.5 bathrooms, including a main level master suite, this home is designed for comfort and privacy. The lower level is an entertainer's dream, featuring a full wet bar, premium theater room, and a covered walkout patio. Two additional guest bedrooms and bathroom ake it an ideal secondary living space. Outdoor living is exceptional, with a large fire pit, space for barbecue grill with plenty of seating for guests. Overlooking a beautifully maintained community green space, fully cared by the HOA ,this home offers a stress free, scenic retreat. Located just 15 minutes from Park City, Deer Valley, and the new Deer Valley East Village resorts, outdoor recreation is at your doorstep. Walk to Jordanelle Reservoir for kayaking, paddleboarding, or sunbathing. With easy access to Highway 40 and I-80, Kimball Junction, Salt Lake City, and the airport are all within reach. Enjoy miles of hiking and biking trails, a nearby non-motorized boat launch, and the Jordanelle Perimeter Trail. This is a rare opportunity to experience luxury lakeside living in a breathtaking mountain setting.



Listing information © 2025 Park City Board of Realtors®. The information provided is for consumers' personal, non-commercial use and may not be used for any purpose other than to identify prospective properties consumers may be interested in purchasing. All properties are subject to prior sale or withdrawal. All information provided is deemed reliable but is not guaranteed accurate, and should be independently verified. Data Last Updated 2025-11-09T00:05:28.487.

www.jeffcamp.com/homes/167272632
Print Image

11422 N Vantage Lane Hideout, UT 84036

  • Price: $6,500/mo.
  • Status: Active
  • On Site: 77 Days
  • Updated: 123 min ago
  • MLS #: 12503822
3
Beds
3
Baths
1
½ Baths
N/A
Acres
3,161
SQFT
2021
Built
Neighborhood:
Shoreline
County:
Wasatch
Area:
29 - Hideout
School District:
Wasatch
Property Description
No Pets; price does not included utilities. Fully furnished. Set against the serene beauty of the Jordanelle Reservoir, beautiful home blends luxury with nature. Thoughtfully designed to complement its surroundings, it features expansive windows and a trifold door in the living room, opening to a spacious deck, perfect for entertaining or unwinding in the fresh mountain air. The open concept living area boasts high ceilings, a gourmet kitchen with premium appliances, custom cabinetry, and a large center island. A linear gas fireplace upstairs adds warmth and ambiance, while a traditional gas fireplace downstairs creates a cozy retreat. With three bedrooms and 3.5 bathrooms, including a main level master suite, this home is designed for comfort and privacy. The lower level is an entertainer's dream, featuring a full wet bar, premium theater room, and a covered walkout patio. Two additional guest bedrooms and bathroom ake it an ideal secondary living space. Outdoor living is exceptional, with a large fire pit, space for barbecue grill with plenty of seating for guests. Overlooking a beautifully maintained community green space, fully cared by the HOA ,this home offers a stress free, scenic retreat. Located just 15 minutes from Park City, Deer Valley, and the new Deer Valley East Village resorts, outdoor recreation is at your doorstep. Walk to Jordanelle Reservoir for kayaking, paddleboarding, or sunbathing. With easy access to Highway 40 and I-80, Kimball Junction, Salt Lake City, and the airport are all within reach. Enjoy miles of hiking and biking trails, a nearby non-motorized boat launch, and the Jordanelle Perimeter Trail. This is a rare opportunity to experience luxury lakeside living in a breathtaking mountain setting.
Exterior Features

Construction Frame - Wood Garage Type AttachedHose Bibs Parking Spaces Covered 2 Roof ShingleMetalComposition Style Side By SideRanchMountain Contemporary Views Ski AreaMountain(s)Lake

Interior Features

Appliances ENERGY STAR Qualified DishwasherDryerENERGY STAR Qualified WasherOvenFreezerDishwasherENERGY STAR Qualified RefrigeratorRefrigeratorMicrowaveDisposal Apx Sqft Finished 3161.00 Cooling Central AirENERGY STAR Qualified Equipment Flooring Wood Heating Forced Air Interior Features Ceiling(s) - 9 Ft PlusCeiling Fan(s) Total Fireplaces 2

Property Features

Available For Sale Yes Date Available 2025-08-15 Geographic Area Heber and Midway Lot Number 69 Major Area Jordanelle Nightly Rental Allowed No Property Description Partially LandscapedNatural VegetationGradual SlopeCorner LotAdjacent Common Area Land Sewage Public Sewer Sub Type Townhouse Term Available 1 Year Townhouse Unit Location Row-End Unit Type Condominium Utilities Cable AvailablePhone AvailableNatural Gas ConnectedHigh Speed Internet AvailableElectricity Connected Water Public

Listing provided by Realty One Group Signature: (801) 208-3800.
The multiple listing information is provided by Park City Board of Realtors® from a copyrighted compilation of listings. The compilation of listings and each individual listing are © 2025 Park City Board of Realtors®, All Rights Reserved. Access to the multiple listing service through this website is made available by High Country Properties as a member of the Park City Board of Realtors® multiple listing service.


Listing information © 2025 Park City Board of Realtors®. The information provided is for consumers' personal, non-commercial use and may not be used for any purpose other than to identify prospective properties consumers may be interested in purchasing. All properties are subject to prior sale or withdrawal. All information provided is deemed reliable but is not guaranteed accurate, and should be independently verified. Data Last Updated 2025-11-09T00:05:28.487.

 
https://bt-photos.global.ssl.fastly.net/parkcity/1280_boomver_1_12503822-2.jpg https://bt-photos.global.ssl.fastly.net/parkcity/1280_boomver_1_12503822-2.jpg https://bt-photos.global.ssl.fastly.net/parkcity/1280_boomver_1_12503822-2.jpg
Logo
High Country Properties
435 Aspen Drive, Apt 18
Park City UT, 84098